CAD Based Layout and Design
CAD-Based Layout & Design Expertise


CME Corp. Increases 3D Design Capabilities with the Acquisition of Moss Medical LLC
CME Corp. announces the integration of Moss Medical LLC, a respected healthcare equipment company known for custom storage equipment and systems, proven expertise in navigating healthcare industry compliance and regulatory standards, advanced CAD-based design and layout services, and to-scale, full-facility 3D modeling.
We understand that creating efficient workflows and optimized storage spaces is essential for next level patient care and profitable operations.
Our team of experienced designers combine extensive knowledge of healthcare equipment with Computer Aided Design (CAD) tools to create layouts that help ensure you are purchasing the best equipment for your space and workflow.
CME Corp.Connects Healthcare Equipment Requirements and Workflow Layout With CAD Technology
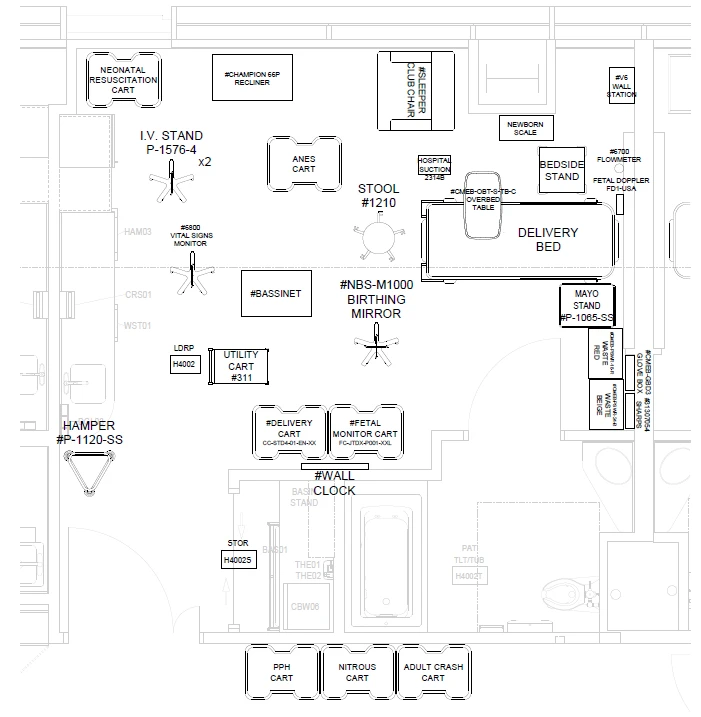
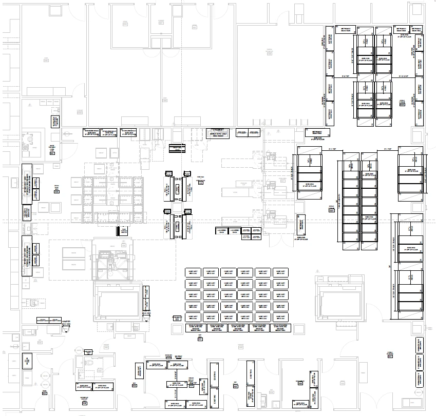
Whether you're planning a new hospital, ASC, clinic, laboratory, or blood bank, upgrading an existing facility, or optimizing storage areas, CAD-based layout drawings and to-scale, full facility 3D modeling give you the opportunity to visualize equipment in its service location before, you buy, so can be sure you are purchasing the best equipment for your space and workflow.
One Team. One Point of Contact.
In addition to in-depth CAD-based layout expertise we understand the complexities of acquiring healthcare equipment.
From the healthcare equipment focused expertise of the sales manager helping you evaluate equipment features, the single point of contact project manager coordinating your order with the logistics teams in the warehouse managing storage, assembly, and staging we raise the bar on single chain of ownership.
White-glove, direct-to-site delivery and after the sale biomedical services distinguish us as the go-to distributor for healthcare equipment.
Explore CAD-Based Drawings
Benefits of CAD-Based Design & Layout Services for Equipment Acquisition
Design Built Around Real Equipment and Real Workflows
Integration with Equipment Planning and Procurement
Support for New Construction and Renovation
Storage Space Optimization
CAD-based layouts are based on actual equipment and consider clearances, utilities, staff movement, and future flexibility, so spaces work as intended from day one.
Consultation with the facility is the first step toward drawings are tailored to real operational needs following.
On-site space assessments including measurements of existing space and products, photos, and detailed notes are the included in CAD-based equipment layouts.
Layouts show the placement of all planned equipment within the actual space based on how the equipment functions.
CAD-based layouts include current manufacturer requirements and can evolve alongside equipment decisions, to help prevent workflow conflicts, blueprint redesigns, and costly change orders.
Coordination of drawings with equipment planners helps ensure equipment is aligned with available space.
CAD-based equipment layouts help architects and planners integarate equipment into broader facility plans.
Collaboration with contractors and facility personnel aligns equipment acquisition with installation timelines.
CAD-based layout and design services help healthcare administrators plan equipment acquisition associated with healthcare construction and renovation projects.
Drawings include engineering requirements and applicable government or construction codes.
CAD services give CME the opportunity to support healthcare facilities as early as the design phase of the project.
Project management ensures healthcare equipment orders, warehousing, delivery, and installation are aligned with timelines.
Typically, a high density storage system increases storage by a minimum of 30%.
From sterile supply rooms to pharmaceutical storage, CAD-based layouts for advanced shelving solutions unlock the storage potential of your healthcare facility.
Maximize limited space, improve accessibility, and take organization to the next level.
Custom CAD plans are developed specifically for each project rather than from generic downloadable files.
Download our CAD-Based Layout and Design Services brochure.














































































